< img height="1" width="1" style="display:none" src="https://www.facebook.com/tr?id=692944559725730&ev=PageView&noscript=1" />

Morocco-Workshop

Morocco-Workshop

Country: Morocco

Year: 2020

Morocco-Workshop
Morocco workshop
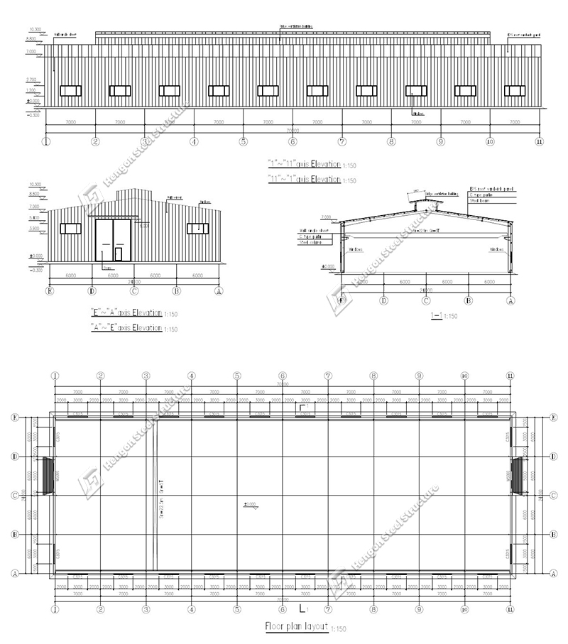
--Only two anchor bolts per column in the workshop with 5T crane
CountryMoroccoYear2020
Project Information
ProjectSteel Structure workshopDimension70*24*7m(with sky window)Wind speed29m/s
MaterialH-steelPaintAlykd paintPurlineC purline
160x60x20x2
RoofEPS sandwich panel (0.47mm+50mm 12kg+0.37mm)+1mm sky light sheetWall corrugated steel sheets V900 0.5mmWindowAlluminum alloy
sliding window, 1mm frame+0.5mm tempered glass 3mx1.5mx24
DoorSandwich panel
sliding door 5mx6mx2
  Containers6x40HQ

 

Steel Structure workshop


Steel Structure workshop