< img height="1" width="1" style="display:none" src="https://www.facebook.com/tr?id=692944559725730&ev=PageView&noscript=1" />

Maldives Multi-Storey Storage

Maldives Multi-Storey Storage

Country: Maldives-Male

Year: 2020

1
1
Maldives Multi-storey Storage
--Land saving multi-story prefabricated steel structure building
CountryMaldives-MaleYear2020
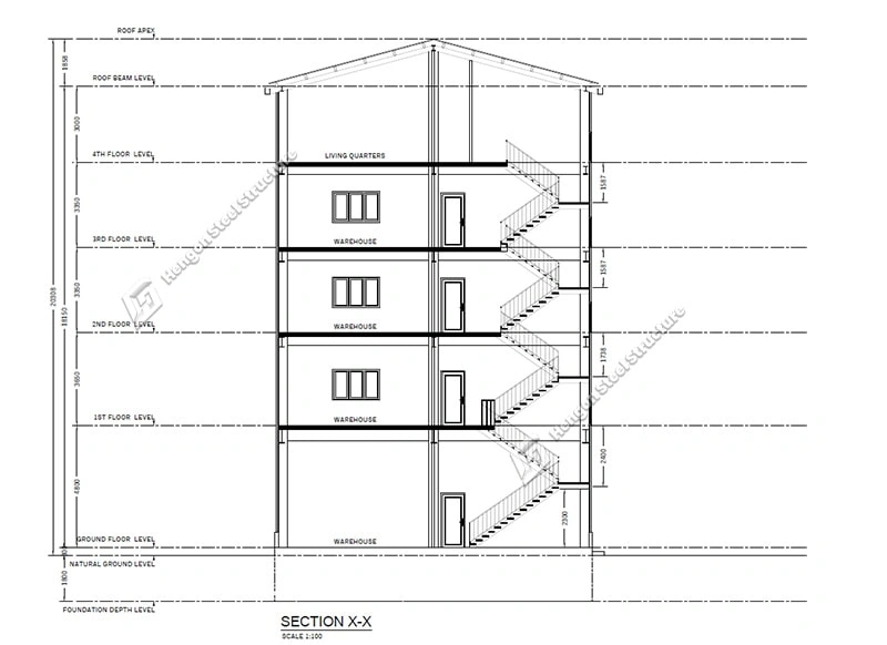
Project Information
ProjectFive floors storageDimension20mx12.2mx18.15mWind speed160km/h
MaterialH-steelPaintAlykd paintPurlineC purline
RoofingV840 0.5mm corrugated steel sheetsWallV900 0.5mm corrugated steel sheets  
Brick height0.6mDoorRolling shutter doorWindowAlluminum alloy sliding window
Floor decking0.8mm*750GutterGalvanized gutter0.8mmContainers5x40HQ
Project Pictures

 

Storey Storage


Storey Storage


Storey Storage