< img height="1" width="1" style="display:none" src="https://www.facebook.com/tr?id=692944559725730&ev=PageView&noscript=1" />

Algeria workshop

Algeria workshop

Country: Algeria

Year: 2019

Algeria workshop
Algeria workshop
CountryAlgeriaYear2019
Project Information
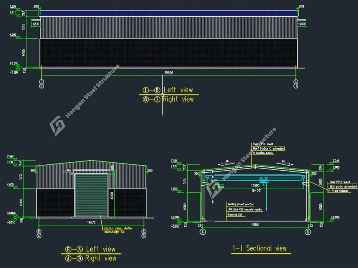
ProjectPre engineered buildingsDimension36x15x7(with 5T over head crane)Wind speed29m/s
MaterialWelded H-steelPaintAlykd paintPurlineC purline
160x60x20x2
Anchor M20*800 Containers2x40HQ ship container
RoofCorrugated steel sheets V840 0.4mm
WallCorrugated steel sheets V900 0.4mm
DoorElectricity roller up door 4.5mx6mx2, with prefabricated canopy
BoltsHigh strength bolts for connecting columns beams;
Commen bolts for connecting purlines;
Self-Tapping screws for connecting single sheets;
Rivets for connecting trims
Project Pictures

 

workshop


workshop


workshop